Diseño de ejercicios con el empleo de las TIC, en un marco estratégico para la mejora del aprendizaje de la asignatura DIBUJO TÉCNICO, emprendida por el profesor A. Manuel Lozano para el próximo curso 2019 - 2020.
INTRODUCCIÓN Este test sobre ACOTACIÓN NORMALIZADA ha sido elaborado de acuerdo con las recomendaciones de las normas UNE y recoge los principios fundamentales que rigen los dibujos técnicos industriales.
La finalidad última del presente test es que el alumno pueda comprobar, por sí mismo sin ayuda del profesor, los conocimientos de normalización que ha conseguido asimilar después de su estudio y para descubrir aquellas posibles lagunas en las que el alumno tiene que insistir para conseguir los objetivos propuestos.
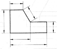
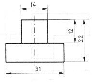
Indicar la solución correcta pulsando con el puntero del ratón correspondiente.
Indicar la solución correcta pulsando con el puntero del ratón correspondiente.
Indicar la solución correcta pulsando con el puntero del ratón correspondiente.
Indicar la solución correcta pulsando con el puntero del ratón correspondiente.
Indicar la solución correcta pulsando con el puntero del ratón correspondiente.
Indicar la solución correcta pulsando con el puntero del ratón correspondiente.
Indicar la solución correcta pulsando con el puntero del ratón correspondiente.
Indicar la solución correcta pulsando con el puntero del ratón correspondiente.
Indicar la solución correcta pulsando con el puntero del ratón correspondiente.
Indicar la solución correcta pulsando con el puntero del ratón correspondiente.